Übersicht
Mietfläche

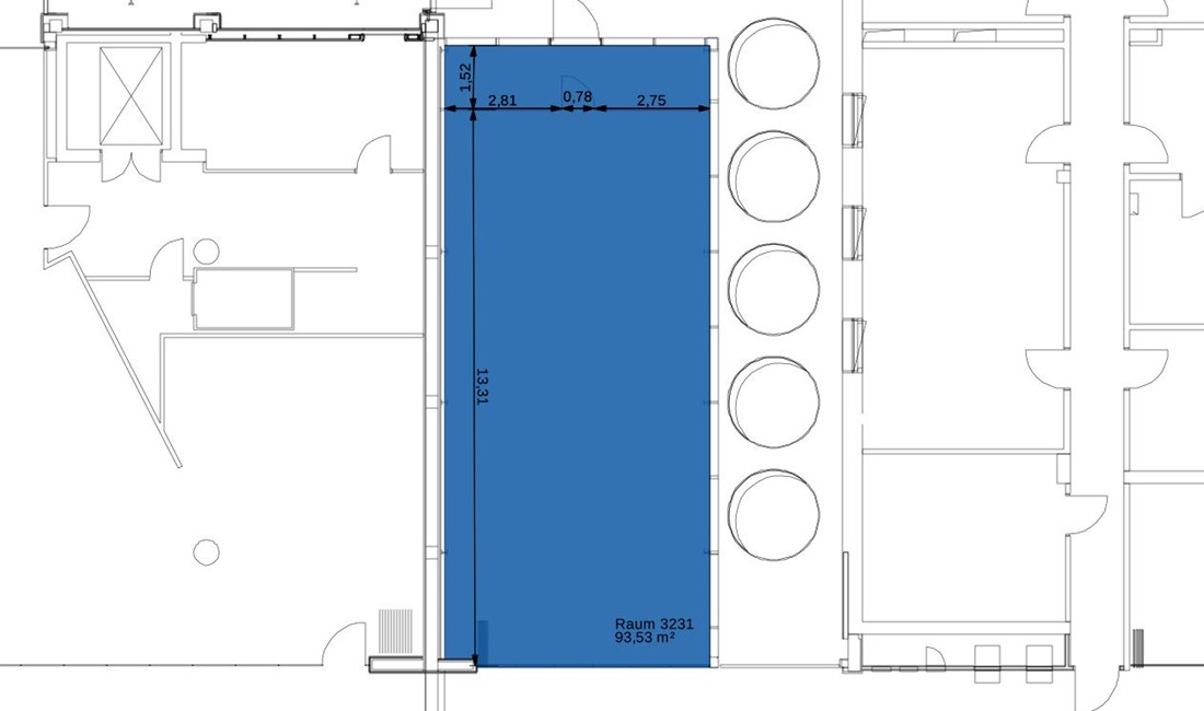
Mietfläche Mieteinheit 3231

Standort Terminals

Fläche 93,53 m ²

Nutzung Retail

Die Mieteinheit 3231 befindet sich im öffentlichen Bereich auf der Abflugebene. Gemeinsam mit anderen Mieteinheiten bildet Sie den stark frequentierten Durchgang zwischen Terminal 1 und Terminal 3. Die Terminalanlagen am Stuttgart Airport bieten eine attraktive Handels- und Gastronomiefläche von derzeit insgesamt 10.000 m² mit mehr als 90 Geschäftseinheiten.

Grundriss

Lage Mieteinheit

Exposé

Der Übergabezustand wird nach Vereinbarung definiert. 

fsgshopping.jpg

Ihr Standort für erstklassige Geschäfte

Eine hohe Kundenfrequenz ist Ihnen am Stuttgart Airport sicher und das 365 Tage im Jahr

04_M13_7655.jpg

Starten Sie durch!

Am Stuttgart Airport präsentieren Sie Ihr Angebot inmitten von eleganten Boutiquen und Shops mit nationalen und internationalen Marken.

T3_Hallhuber_Ravensburger_high_NEU.jpg

Faszination Flughafen

Der Stuttgart Airport macht jede Shoppingtour zu einem ganz besonderen Erlebnis und das 7 Tage die Woche.

31_LaTrattoria_4073_lowres.jpg

Gastronomische Vielfalt

Für ein Plus an Aufenthaltsqualität: das kulinarische Angebot am Stuttgart Aiport

Daten und Fakten

Bezeichnung Mieteinheit 3231
Nutzung Retail
Mietfläche 93,53 m²
Zustand Bestandsgebäude
Ebene Abflug
Terminal 2
Verfügbarkeit sofort
Mietpreis auf Anfrage
Nebenkosten auf Anfrage
Bauherr Flughafen Stuttgart GmbH
Ansprechpartner Lisa Faßnacht
Tel.: 049 (0) 711/948-3284
centermanagement@stuttgart-airport.com

Gastronomie und Geschäfte am Stuttgart Airport und Stuttgart Airport City

Filter

Terminals